Garsonierele au suprafete optimizate, cu dressing din constructie si debara pentru masina de spalat si pentru depozitare.
Daria Residence Constanta
Strada Madrid 50A, zona Tomis Plus
Constanta, Romania
Telefon: +40 744 344 451

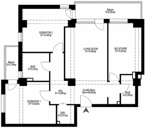
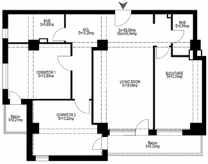
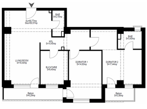
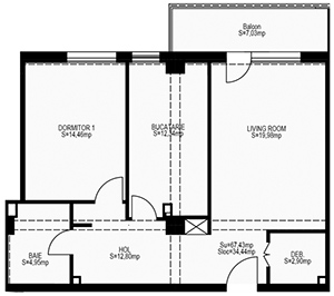
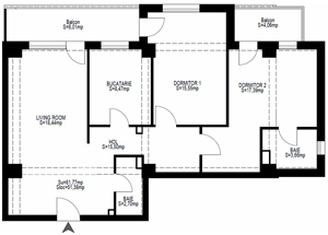
Apartamentele cu trei camere sunt de mai multe tipuri, la fel, pentru a satisface toate asteptarile cumparatorilor in ceea ce priveste o locuinta practica si primitoare.
Sunt apartamente care au dormitoarele si baia mare grupate in zona de liniste, living alaturi de bucatarie si de grupul sanitar de serviciu, prevazut cu spatiu pentru cabina de dus.
Sunt si apartamente care ofera o intimitate sporita prin dormitoarele matrimoniale concepute cu dressing si baie proprie.
Toate apartamentele cu trei camere au cate doua balcoane, unul la un dormitor, iar celelat, cel mare, pe living si bucatarie, cu iesire si din celalalt dormitor. Nici aici nu lipsesc spatiile speciale pentru depozitare, pentru a dispune la maxim de tot spatiul oferit.
Locurile de parcare in proprietate sunt in fata blocului, la parterul acestuia, acoperite, cat si in curtea imobilului, accesul facil fiind asigurat cu bariera si telecomanda.
DARIA Residence este un proiect privat, care se ridica in noul cartier Tomis Plus aflat in plina ascensiune, de unde poti ajunge foarte usor in toate zonele de interes, artere principale ale Constantei, Universitatea Ovidius, statiunea Mamaia, sau marile centre comerciale Tom, Vivo, City.
La ce ne-am gandit cand am proiectat acest bloc? Ne-am gandit ca trebuie sa iesim din tipare, sa ne preocupe un pic mai mult confortul tau si al familiei tale, intr-o locuinta pe care, pe drept cuvant, ai putea-o numi "acasa". Iti propunem apartamente foarte spatioase intr-o constructie moderna, cu materiale de inalta clasa si calitate la cost optim. Regasesti in oferta noastra atat garsoniere, cat si apartamente cu 2 si 3 camere, iar la fiecare dintre acestea, daca ai vrea, ai putea avea locul de parcare propriu, cu costuri accesibile, ce implica trei variante de pret.
Cele 59 de apartamente dispuse pe 9 etaje au suprafete si balcoane generoase, structuri decomandate, ferestre mari ce permit luminii naturale sa patrunda. Am venit in intampinarea nevoilor tale, astfel ti-am creat spatii de depozitare atat de necesare, pentru un maximum de confort si functionalitate. Stim ca linistea familiei tale este importanta pentru tine, de aceea Ansamblul DARIA Residence va fi bine delimitat si suprevegheat. Astfel, te poti bucura alaturi de cei dragi de spatiul verde aferent intr-o deplina siguranta. De asemenea, stim ca timpul tau este foarte pretios pentru tine, iar ideea de a exista in bloc un spatiu special destinat colectarii resturilor menajere ne-a incantat. Acesta va fi accesibil la fiecare etaj intr-o camera alaturata liftului, prevazuta cu "sas", izolata si cu aerisire naturala, perfect incadrata in normele in vigoare.
Proiect realizat de:
DARIA RESIDENCE sustine si recomanda:
DARIA Residence este un proiect privat, care se ridica in noul cartier Tomis Plus aflat in plina ascensiune, de unde poti ajunge foarte usor in toate zonele de interes, artere principale ale Constantei, Universitatea Ovidius, statiunea Mamaia, sau marile centre comerciale Tom, Vivo, City.
La ce ne-am gandit cand am proiectat acest bloc? Ne-am gandit ca trebuie sa iesim din tipare, sa ne preocupe un pic mai mult confortul tau si al familiei tale, intr-o locuinta pe care, pe drept cuvant, ai putea-o numi "acasa".